文库 机械管理与电气自动化 能源与动力工程

珠海市妇女儿童活动中心暖通系统的设计-21556字.docx

2022及前全 DOCX   57页   下载0   2026-01-13   浏览2   收藏0   点赞0   评分-   45617字   20.00
温馨提示:当前文档最多只能预览 10 页,若文档总页数超出了 10 页,请下载原文档以浏览全部内容。
珠海市妇女儿童活动中心暖通系统的设计-21556字.docx 第1页
珠海市妇女儿童活动中心暖通系统的设计-21556字.docx 第2页
珠海市妇女儿童活动中心暖通系统的设计-21556字.docx 第3页
珠海市妇女儿童活动中心暖通系统的设计-21556字.docx 第4页
珠海市妇女儿童活动中心暖通系统的设计-21556字.docx 第5页
珠海市妇女儿童活动中心暖通系统的设计-21556字.docx 第6页
珠海市妇女儿童活动中心暖通系统的设计-21556字.docx 第7页
珠海市妇女儿童活动中心暖通系统的设计-21556字.docx 第8页
珠海市妇女儿童活动中心暖通系统的设计-21556字.docx 第9页
珠海市妇女儿童活动中心暖通系统的设计-21556字.docx 第10页
剩余47页未读, 下载浏览全部
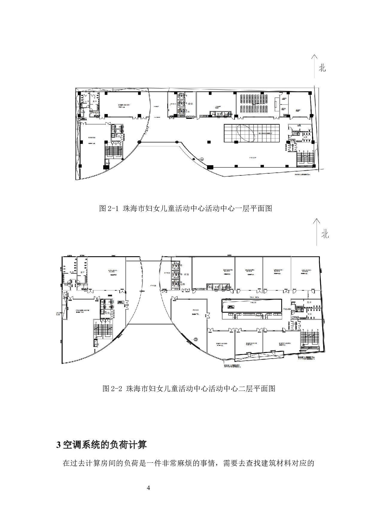
珠海市妇女儿童活动中心暖通系统的设计 摘要 为了实现珠海市活动中心的暖通系统制冷和节能并存,创造一个令人感到舒适的环境,整栋活动中心建筑面积5074.78m 2 ,空调房间建筑面积1915.73 m 2 。总冷负荷577.327kW,因为水机一开全开的特性,会造成能源不必要的浪费,所以本次设计选择的是格力的GMV L 系列多联机 实现夏天制冷 , 因为 多联机系统初期投入资本高,但运行成本低, 更加 节能。 大房间用 的是GMV-NDT/A天花板式室内机,为的是让冷空气在房间内均匀散布的同时还打到满足室内噪音要求,前室选择的是GMV-NPL/B高效静音风管机。
珠海市妇女儿童活动中心暖通系统的设计-21556字.docx