文库 建筑与工程管理 工程造价

盘锦市一中宿舍楼项目招标控制价的编制-17574字.docx

DOCX   33页   下载0   2025-10-28   浏览57   收藏0   点赞0   评分-   24376字   6积分
温馨提示:当前文档最多只能预览 10 页,若文档总页数超出了 10 页,请下载原文档以浏览全部内容。
盘锦市一中宿舍楼项目招标控制价的编制-17574字.docx 第1页
盘锦市一中宿舍楼项目招标控制价的编制-17574字.docx 第2页
盘锦市一中宿舍楼项目招标控制价的编制-17574字.docx 第3页
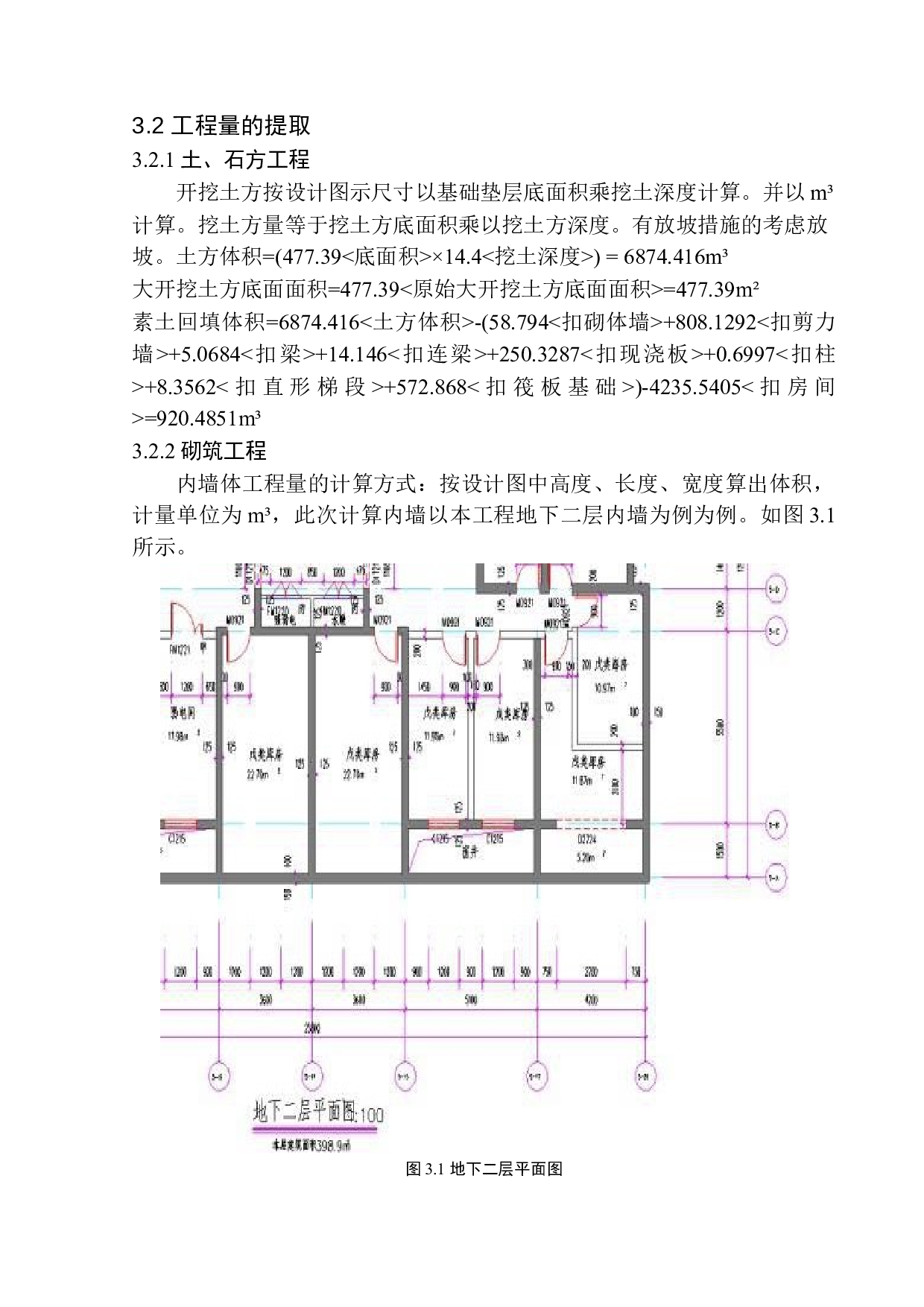
盘锦市一中宿舍楼项目招标控制价的编制-17574字.docx 第4页
盘锦市一中宿舍楼项目招标控制价的编制-17574字.docx 第5页
盘锦市一中宿舍楼项目招标控制价的编制-17574字.docx 第6页
盘锦市一中宿舍楼项目招标控制价的编制-17574字.docx 第7页
盘锦市一中宿舍楼项目招标控制价的编制-17574字.docx 第8页
盘锦市一中宿舍楼项目招标控制价的编制-17574字.docx 第9页
盘锦市一中宿舍楼项目招标控制价的编制-17574字.docx 第10页
剩余23页未读, 下载浏览全部
目 录 摘 要 1 Abstract 2 引 言 3 1 概述 4 1.1 国内外 现状及发展趋势 4 1.2 课题研究的目的与意义 6 1.3 招标控制价的编制要点 6 2 工程概况及编制说明 8 2 .1 工程概况 8 2 .2 编制说明 8 3 工程计量 9 3.1 工程建模 9 3.2 工程量的提取 9 4 工程量清单的编制 16 4.1 分部分项工程与单价措施项目清单的编制 16 4.2 总价措施项目清单的编制 17 4.3 其他项目清单的编制 17 4.4 规费与税金清单的编制 18 5 工程量清单计价的编制 19 5.1 分部分项工程与单价措施项目费的确定 19 5.2 总价措施项目费的确定 20 5.3 其他项
盘锦市一中宿舍楼项目招标控制价的编制-17574字.docx