添加到电脑桌面
添加到电脑桌面,以后点击桌面图标一键打开,无需搜索,非常快捷!
立即添加
资源篮
0
普通会员
限时优惠
登录
文档分类
计算机
金融/投资/证券
医药卫生
汽车/机械
外语学习
法律/法规/法学
研究生考试
电子工程
经济/贸易/财会
建筑/施工
幼儿/小学教育
文学/历史
教师资格考试
学术论文
上传下载
我要上传
上传规定
关于下载
下载须知
上传说明
投稿帮助
关于积分
关于提现
新手攻略
文档认领
特殊渠道特权
VIP收益说明
协议条款
用户协议
隐私政策
商户服务协议
上传积分文档协议
会员服务协议
文库
旅游与环境
环境工程
喷涂车间密闭罩-16字.docx
2022及前全
DOCX
2页
下载0
2026-01-12
浏览2
收藏0
点赞0
评分-
18字
20.00
收藏
已收藏
喜欢
已喜欢
文本预览
文档描述
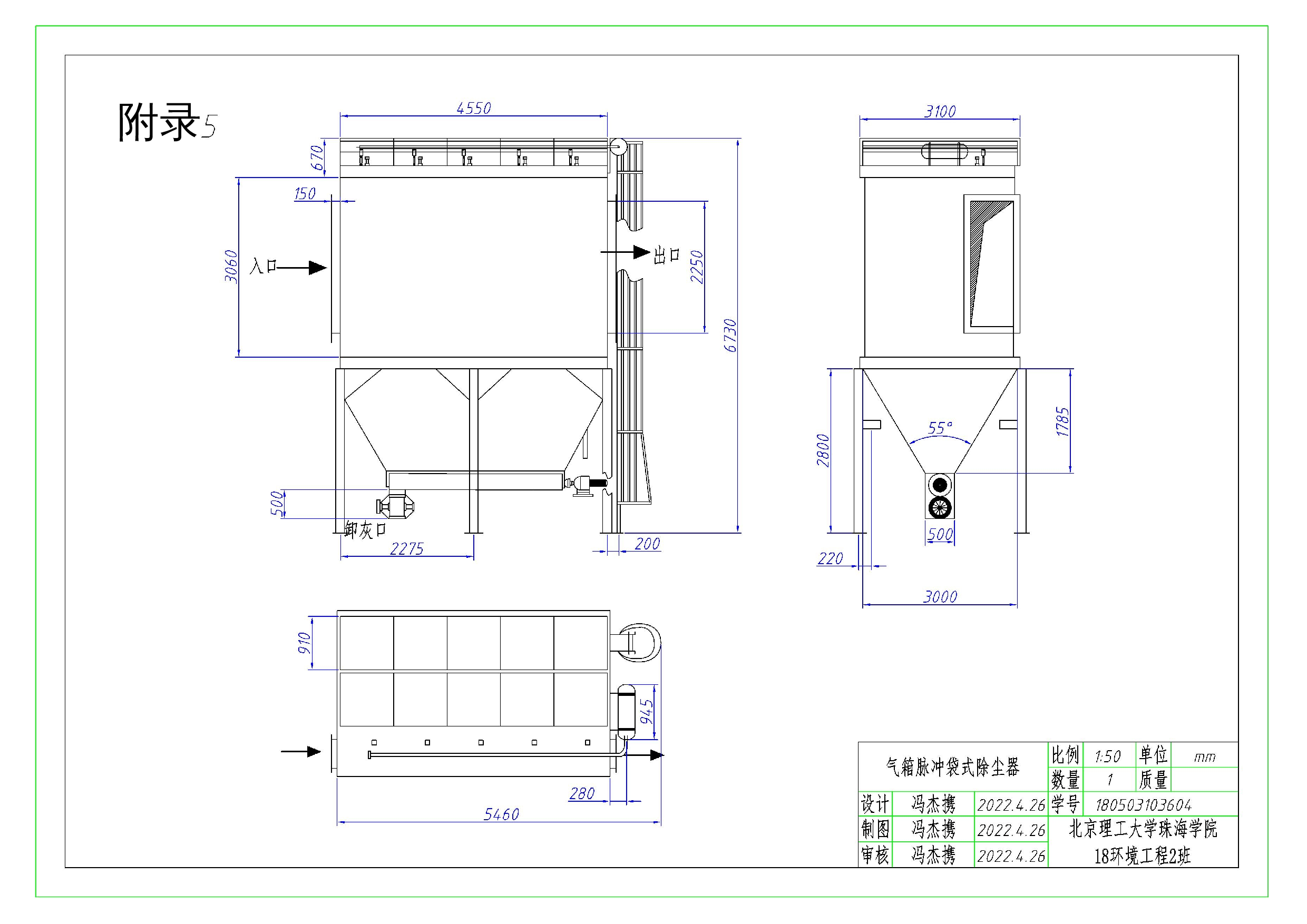
附录 附录 净 化 后 气 体 高 浓 度 有 机 废 气
查看更多
收起部分
喷涂车间密闭罩-16字.docx
ruan
这个人很懒,什么都没留下
个人认证
查看用户
该文档于
上传
推荐文档
最新文档
排泥管反射板进水管中心管出水槽-87字.pdf
3万m3d城镇污水处理厂工程设计-9600字.docx
某城镇污水处理厂10万td工艺设计-12673字.pdf
土壤改良剂对镉污染土壤理化性质的影响分析-11017字.pdf
终稿污水厂cad-0字.pdf
壁市城东污水处理厂工艺设计 Technological design of a town sewage treatment plant in Bishi-14519字.pdf
金属有机骨架材料制备及除磷性能研究_StudyonPreparationofMOFsandPhosphorusRemovalPerformance-10595字.docx
请提供文档封面信息,我将从中选择论文题目并为您生成文件名。-139字.pdf
某城市日处理8万m3污水处理工艺设计-10665字.docx
南京市生活垃圾产生现状及清运量预测-7879字.doc