文库 建筑与工程管理 安全工程

某星级酒店防烟排烟系统设计-16170字.pdf

2022及前全 PDF   35页   下载0   2026-01-15   浏览4   收藏0   点赞0   评分-   26508字   20.00
温馨提示:当前文档最多只能预览 10 页,若文档总页数超出了 10 页,请下载原文档以浏览全部内容。
某星级酒店防烟排烟系统设计-16170字.pdf 第1页
某星级酒店防烟排烟系统设计-16170字.pdf 第2页
某星级酒店防烟排烟系统设计-16170字.pdf 第3页
某星级酒店防烟排烟系统设计-16170字.pdf 第4页
某星级酒店防烟排烟系统设计-16170字.pdf 第5页
某星级酒店防烟排烟系统设计-16170字.pdf 第6页
某星级酒店防烟排烟系统设计-16170字.pdf 第7页
某星级酒店防烟排烟系统设计-16170字.pdf 第8页
某星级酒店防烟排烟系统设计-16170字.pdf 第9页
某星级酒店防烟排烟系统设计-16170字.pdf 第10页
剩余25页未读, 下载浏览全部
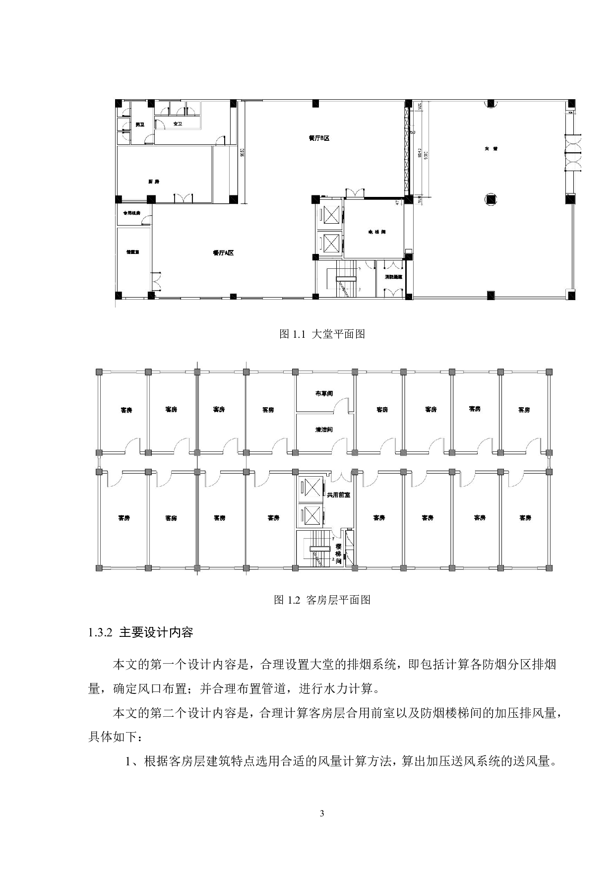
本科毕业设计(论文) 某星级酒店防烟排烟系统设计 学 院 环境科学与工程学院 专 业 安全工程 年级班别 2018级(1)班 学 号 3218006541 学生姓名 关敏婷 指导教师 罗权兵胡志俭 2022年5月 设计总说明 本设计在总结反思目前我国在防排烟系统设计上的性能与实际需求不匹配、管道布 置浪费建材、计算方法选择随意、风口布置不合理等系列不足,对某新建的星级酒店进 行了防烟排烟系统的设计,结合大堂层以及客房层的建筑概况,针对性地开展设计以及 进行计算。 本文将《建筑防排烟系统技术标准》作为核心的指导,紧跟规范要求开展设计,参
某星级酒店防烟排烟系统设计-16170字.pdf